173 Parkview Crescent W Bow Island, Alberta T0K 0G0

2 Bedroom 2 Bathroom 1,070 ft2
Bungalow Fireplace Central Air Conditioning Forced Air

$399,000

BRAND NEW, low-maintenance living in the new Parkview Crescent with NO CONDO FEES and the additional bonus of a $7500 property tax credit with the Town of Bow Island! Welcome to Parkview Crescent, Bow Island's newest subdivision, where modern design meets small-town comfort. This brand-new 1070 sq. ft. home is one unit in a JAYCO built four-plex, offering an efficient, low-maintenance lifestyle with no condo fees - perfect for seniors looking to downsize or young families starting out. Inside, the open-concept main floor features a bright living space with a stylish electric fireplace, a spacious kitchen and a dining area designed for easy living. With two bedrooms on the main floor, including a primary suite with a 4-piece ensuite, comfort and convenience come standard. Laundry can be on the main floor or in the basement, depending on your preference. This home also features: ICF Foundation for energy efficiency and durability, Attached heated single garage for year-round comfort, Undeveloped basement ready for your personal touch. You can move in and enjoy the ease of a brand-new home in a fantastic location. (id:64686)

Property Details

MLS® Number A2194421
Property Type Single Family
Amenities Near By Park, Playground, Schools, Shopping
Parking Space Total 2
Plan 2510386

Building

Bathroom Total 2
Bedrooms Above Ground 2
Bedrooms Total 2
Appliances None
Architectural Style Bungalow
Basement Development Unfinished
Basement Type Full (unfinished)
Constructed Date 2025
Construction Material Wood Frame, Icf Block
Construction Style Attachment Attached
Cooling Type Central Air Conditioning
Fireplace Present Yes
Fireplace Total 1
Flooring Type Vinyl
Foundation Type Poured Concrete, See Remarks
Heating Type Forced Air
Stories Total 1
Size Interior 1,070 Ft2
Total Finished Area 1070 Sqft
Type Row / Townhouse

Parking

Other
Attached Garage 1

Land

Acreage No
Fence Type Not Fenced
Land Amenities Park, Playground, Schools, Shopping
Size Depth 12.19 M
Size Frontage 13.72 M
Size Irregular 2475.00
Size Total 2475 Sqft|0-4,050 Sqft
Size Total Text 2475 Sqft|0-4,050 Sqft
Zoning Description R-1

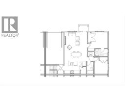
Rooms

Level Type Dimensions
Main Level Other 18.00 Ft x 16.67 Ft
Main Level Living Room 12.33 Ft x 16.67 Ft
Main Level 4pc Bathroom Measurements not available
Main Level Bedroom 12.33 Ft x 10.33 Ft
Main Level Primary Bedroom 12.33 Ft x 14.83 Ft
Main Level 3pc Bathroom Measurements not available

https://www.realtor.ca/real-estate/27912737/173-parkview-crescent-w-bow-island

Contact Us

Contact us for more information

Generating Captcha

Denise Fode
Associate

(403) 878-6866
(403) 529-9660
dfode.remax.ca/
www.facebook.com/DeniseFodeReMax/

RE/MAX Medalta Real Estate
109, 1235 Southview Dr. Se
Medicine Hat, Alberta T1B 4K3

(403) 529-9393
(403) 529-9660
www.remaxsells.com/

Your Favourites

 

No Favourites Found