910 Centennial Avenue Nobleford, Alberta T0L 1S0

4 Bedroom 3 Bathroom 1,755 ft2
Bungalow Fireplace Central Air Conditioning Forced Air Fruit Trees, Garden Area, Landscaped, Underground Sprinkler

$699,000

This stunning Nobleford bungalow is situated on a sprawling lot of more than half an acre. The main floor is over 1700 square feet, featuring a bright living room, a heated sunroom, an office, and two comfortable bedrooms, including a spacious master suite. The house has an attached 24 x 32 garage that is insulated and heated. Outside, the property has a detached double garage, and a dedicated parking lot in the back, and is equipped with two 30-amp RV hookups.The outdoor living space is fully fenced and meticulously maintained with underground sprinklers. The yard features raised garden beds and an impressive variety of mature fruit trees, including apples, pears, plums, and sour cherries, alongside saskatoon, raspberry, and haskap bushes. You can take in the scenery from the charming front porch or retreat to the backyard to enjoy the brand-new deck installed in 2025.Perfectly positioned for family life, this home is located just steps away from the local spray park and within easy walking distance of the K-12 school. Between the vast yard, the incredible shop space, and the move-in-ready interior, there is truly something for everyone here. We invite you to explore the excellent floor plan and beautiful grounds further by viewing the virtual tour. Call your favourite REALTOR® today to book a viewing. (id:64686)

Property Details

MLS® Number A2302180
Property Type Single Family
Amenities Near By Playground, Schools
Features Back Lane
Parking Space Total 10
Plan 0612608
Structure Deck

Building

Bathroom Total 3
Bedrooms Above Ground 2
Bedrooms Below Ground 2
Bedrooms Total 4
Appliances Dishwasher, Stove, Microwave, Microwave Range Hood Combo, Washer & Dryer
Architectural Style Bungalow
Basement Development Finished
Basement Type Full (finished)
Constructed Date 2006
Construction Material Poured Concrete, Wood Frame
Construction Style Attachment Detached
Cooling Type Central Air Conditioning
Exterior Finish Concrete, Vinyl Siding
Fireplace Present Yes
Fireplace Total 1
Flooring Type Carpeted, Linoleum
Foundation Type Poured Concrete
Heating Type Forced Air
Stories Total 1
Size Interior 1,755 Ft2
Total Finished Area 1755 Sqft
Type House

Parking

Concrete
Attached Garage 2
Detached Garage 2
R V

Land

Acreage No
Fence Type Fence
Land Amenities Playground, Schools
Landscape Features Fruit Trees, Garden Area, Landscaped, Underground Sprinkler
Size Depth 78.02 M
Size Frontage 30.78 M
Size Irregular 0.57
Size Total 0.57 Ac|21,780 - 32,669 Sqft (1/2 - 3/4 Ac)
Size Total Text 0.57 Ac|21,780 - 32,669 Sqft (1/2 - 3/4 Ac)
Zoning Description R

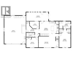
Rooms

Level Type Dimensions
Basement Family Room 16.17 Ft x 29.25 Ft
Basement Bedroom 16.17 Ft x 11.58 Ft
Basement Bedroom 11.50 Ft x 16.00 Ft
Basement 3pc Bathroom .00 Ft x .00 Ft
Basement Exercise Room 11.50 Ft x 11.42 Ft
Basement Storage 6.67 Ft x 16.08 Ft
Main Level Kitchen 13.83 Ft x 11.33 Ft
Main Level Dining Room 13.25 Ft x 10.08 Ft
Main Level Living Room 15.08 Ft x 18.42 Ft
Main Level Primary Bedroom 20.50 Ft x 12.67 Ft
Main Level Bedroom 11.00 Ft x 13.42 Ft
Main Level Office 10.33 Ft x 8.17 Ft
Main Level 3pc Bathroom .00 Ft x .00 Ft
Main Level 4pc Bathroom .00 Ft x .00 Ft

https://www.realtor.ca/real-estate/29620324/910-centennial-avenue-nobleford

Contact Us

Contact us for more information

Generating Captcha

Jennifer Brodoway
Associate

(403) 795-8783
(403) 320-9965
www.youtube.com/embed/KAlG4I5sW6U
www.youtube.com/embed/n3IAmf4FPJg
www.viewlethbridge.com/
www.facebook.com/lethbridgerealestateagent
lnkd.in/7sRxAg
twitter.com/lethbridgehome
www.youtube.com/watch?v=n3IAmf4FPJg

Lethbridge Real Estate.com
2219 - 2 Avenue North
Lethbridge, Alberta T1H 0C1

(403) 327-8001
(403) 320-9965
lethbridgerealestate.com/

David Brodoway
Associate

(403) 331-8484
(403) 320-6655
www.youtube.com/embed/Rh4Bd9da-nw
www.viewlethbridge.com/
www.facebook.com/lethbridgerealestateagent
www.linkedin.com/in/dave-brodoway-48578610
youtu.be/Rh4Bd9da-nw

Lethbridge Real Estate.com
2219 - 2 Avenue North
Lethbridge, Alberta T1H 0C1

(403) 327-8001
(403) 320-9965
lethbridgerealestate.com/

Your Favourites

 

No Favourites Found